実績店舗紹介
お仕事の流れ
マスタープラン自動お見積もり
開業塾
会社概要
お問い合わせ
実績店舗紹介
HOME
| zebrand |
実績店舗紹介
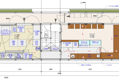
スケッチ
レイアウト
商業施設
独立路面
路面テナント